OFICINAS SEGRUP

Una renovación integral pensada para crecer y modernizarse.

Una renovación integral pensada para crecer y modernizarse.
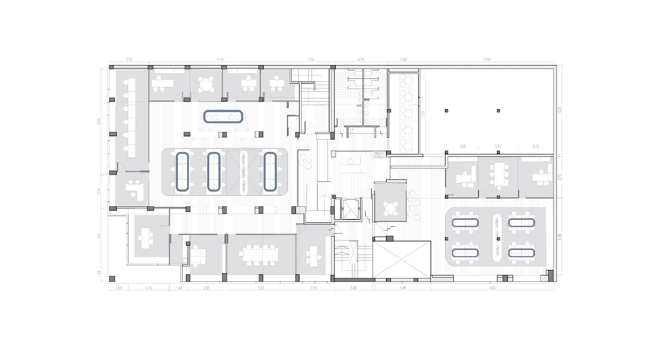
El proyecto de OFICINAS SEGRUP consistió en la reforma y reestructuración de un espacio existente de 500 m², desarrollada en dos etapas con el objetivo de optimizar la funcionalidad y ampliar la capacidad operativa.

La propuesta incorpora más puestos de trabajo, nuevos sectores de apoyo y un comedor integrado, concebido como punto de encuentro cotidiano y flexible.
Cada decisión de diseño busca aprovechar la luz natural, potenciar la sensación de amplitud y lograr un entorno de trabajo moderno, minimalista y versátil.

Actualmente, el proyecto se encuentra en etapa de cotización, previo al inicio de obra.
Desde PIEMA ESTUDIO, se abordó con una mirada integral que combina estética, eficiencia y confort, dando forma a oficinas que acompañan el crecimiento de la empresa y reflejan su identidad actual.

Oficinas actualidad

Previous
Previous

Oficinas Farmavip